New Medical Centre for the Southside

Salisbury Court

Salisbury Court Unite Student Accommodation

Proposed medical centre.

Update February 2023

The new medical centre has been open for a few months now, and reports from patients are very positive.

We are pleased that NHS Lothian decided to open this new centre, and look forward to local residents being treated here for many years.

Update 8/7/22

Edinburgh Health & Social Care Partnership say: Two GP Practices in the Southside/Newington Ward will be moving to a new purpose built site at Salisbury Court on St Leonards Street by the end of Summer 2022. The practices that will be moving are:

Boroughloch Medical Practice
Dalkeith Road Medical Practice.

The new Medical Practice accommodation is part of our ongoing renewal of medical practices across the city, partly to offer modern facilities and partly to help us absorb additional population.

Within the next few days we will be communicating details to patients within the practices about the move.

The shop unit at 102 St Leonard's Street is on the ground floor of this student accommodation block.

In February 2021 the City of Edinburgh Planning Department granted permission for a change of use for this unit to be used as a health centre for NHS Lothian.

We are keen to see this proposal implemented as soon as possible as there is a shortage of medical practices in the area, with many residents having to travel well outside the area to access health care facilities.

We should very much like to hear what plans NHS Lothian has for the site. When we hear what they plan to do we will publish it here.

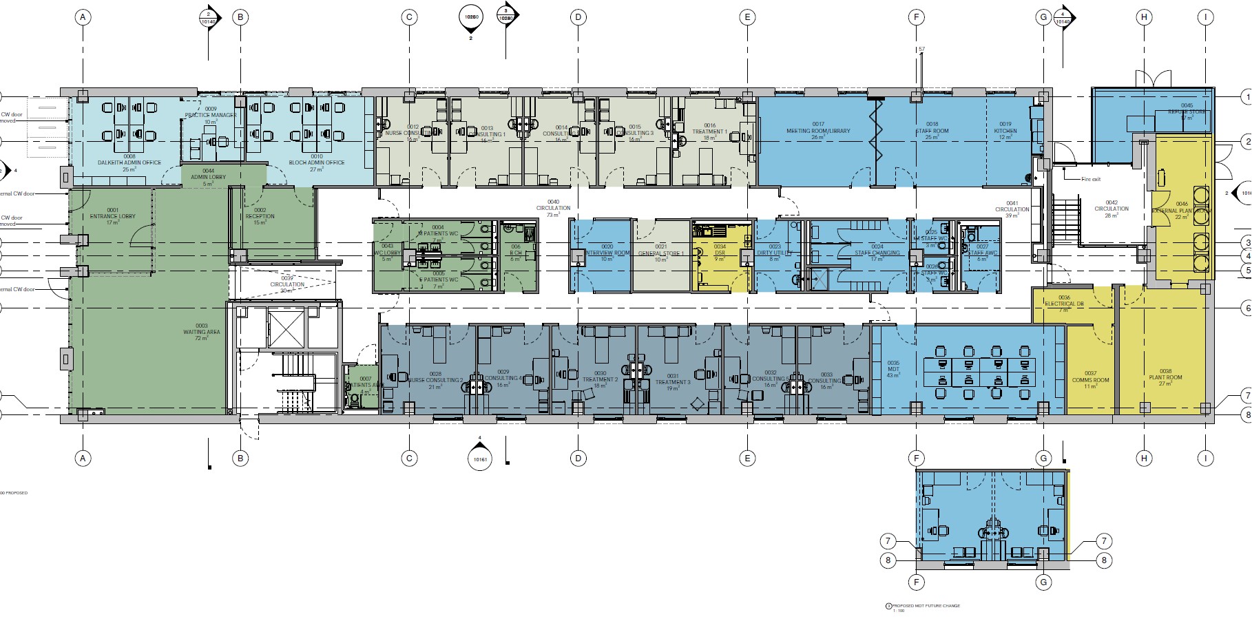
Here are the plans as published in the planning application. Click image to see the pdf document.

Medical Plans